Grampin
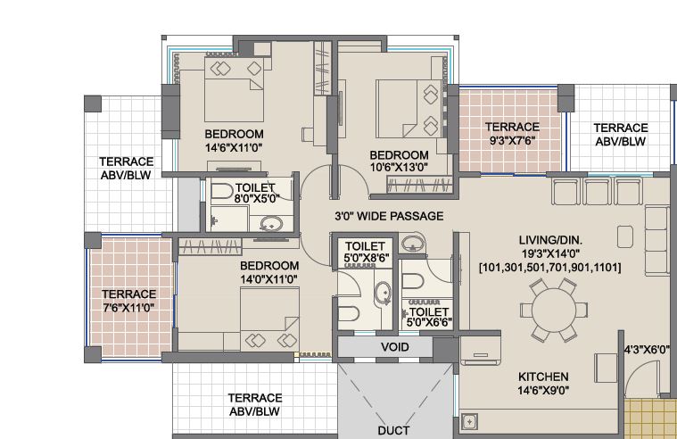
Kapil Akhila Baner Pune : It consists of about 60 bungalows.